Với những gia đình sở hữu mảnh đất không quá rộng thì nhà ống luôn là giải pháp khoa học và phù hợp nhất. Nếu bạn có mảnh đất 6x14m và muốn xây dựng một mẫu nhà ống 2 tầng 6x14m đẹp, đảm bảo công năng, phù hợp với khả năng tài chính thì đừng bỏ qua bài viết dưới đây của Kiến Trúc Sài Gòn.
Tham khảo một số mẫu nhà ống 6x14m 2 tầng đẹp
Mẫu nhà ống 6x14m 2 tầng không có diện tích lớn nhưng lại có ưu điểm là mặt tiền khá rộng rãi. Đây là một điểm cộng cho những gia chủ muốn thiết kế nhà chú trọng đến ngoại cảnh hoặc có thể dùng làm mặt bằng kinh doanh. Hãy cùng chiêm ngưỡng những phối cảnh thiết kế nhà đẹp, độc đáo vừa đảm bảo tính thẩm mỹ vừa đáp ứng được không gian tiện nghi bên trong dưới đây.
Mẫu nhà ống 2 tầng 6x14m trẻ trung năng động
Mẫu nhà ống 2 tầng đầu tiên được thiết kế theo phong cách hiện đại, trẻ trung với các khối đơn giản, chắc chắn trên nền tông màu nâu be nhạt kết hợp với hệ thống lan can sắt làm tăng chất hiện đại cho tổng thể kiến trúc. Đây là kiểu phối cảnh nhà phố trẻ trung điển hình, không có những chi tiết rườm rà, cầu kỳ không theo xu hướng nên tồn tại lâu dài mà không lỗi mốt.
Điểm nhấn chính của ngôi nhà nằm ở hệ thống mái dốc, kết hợp với các khối kiến trúc đua ra tạo hình khối đầy tính nghệ thuật. Không gian xanh cũng được các kiến trúc sư đưa vào mẫu nhà 2 tầng này. Từ tường rào tầng 1, bệ cửa sổ tầng 2, ban công đều được trồng cây tự nhiên làm điểm nhấn. Ngoài ra, ngôi nhà còn sử dụng cửa sổ kính cường lực giúp đón sáng và tạo tầm nhìn lưu thông từ trong ra ngoài. Do nằm ở vị trí tiếp giáp với trục đường chính nên ngôi nhà có thiết kế cổng và tường rào bao quanh. Nó có vai trò bảo vệ an toàn cho ngôi nhà cũng như góp phần tạo nên vẻ đẹp kiến trúc hấp dẫn.
Phối cảnh kiến trúc mẫu thiết kế nhà 2 tầng 6x14m đẹp hiện đại trẻ trung
Mẫu nhà ống 2 tầng 6x14m đơn giản mà thanh lịch
Mẫu nhà ống 6x14m 2 tầng tiếp theo có kiến trúc mái bằng kết hợp với hệ kính lớn hiện đại giúp ngôi nhà luôn tràn ngập ánh sáng. Kiến trúc ngôi nhà đề cao sự tối giản, chọn màu sơn ngoại thất trung tính khá an toàn. Sự kết hợp giữa hai màu trắng và đen tương phản giúp cho bố cục của ngôi nhà không bị đơn điệu, nhàm chán. Bức tường rào kết hợp giữa gạch bông gió trắng và cổng sắt đen với những họa tiết trang trí độc đáo cũng tạo nên điểm nhìn ấn tượng cho ngoại thất ngôi nhà.
Đặc biệt, mẫu nhà ống 2 tầng này có sự kết hợp ăn ý giữa các mảng xanh vào không gian sống, dù chỉ là điểm nhấn nhỏ nhưng lại mang lại hiệu quả khá rõ rệt. Hệ thống đèn LED được bố trí khéo léo cũng góp phần làm cho ngôi nhà lung linh hơn về đêm.
Mẫu nhà ống có thiết kế đơn giản nhưng bắt mắt.
Mẫu nhà ống 2 tầng 6x14m không gian mở thông thoáng.
Được thiết kế theo phong cách năng động, trẻ trung với hình khối đơn giản nhưng mẫu nhà ống 6x14m 2 tầng vẫn rất nổi bật trên nền trắng sáng chủ đạo, kết hợp với hệ thống lan can đầy cây xanh giúp tăng tính thẩm mỹ. cho tổng thể kiến trúc và mang không khí mát mẻ vào nhà.
Kiểu nhà này cũng khá phù hợp với những gia đình mới cưới. Những đường nét kiến trúc tối giản, chi tiết rườm rà, hình khối gọn gàng, khỏe khoắn luôn có sức hút riêng và không bao giờ lỗi mốt theo thời gian. Không có ban công nhưng kiến trúc sư đã khéo léo thiết kế các ô cửa kính để đưa toàn bộ ánh sáng vào nhà. Không gian tum thiết kế mở, phủ đầy cây xanh cũng góp phần tạo nên những mảng xanh độc đáo trên nền tường trắng trang nhã.
Mẫu thiết kế nhà ống 2 tầng hướng tới không gian xanh thoáng
Mẫu nhà ống 6x14m 2 tầng độc đáo
Mẫu thiết kế nhà ống 2 tầng 6x14m này nổi bật với lối kiến trúc khỏe khoắn, hiện đại cùng những đường nét mộc mạc, phóng khoáng mang đến vẻ đẹp sinh động, cuốn hút. Ngôi nhà được ốp bằng nhiều vật liệu như gạch ốp tường giả gỗ, đá xám, gạch thông gió, cửa kính khung nhôm nhưng tất cả đều được kết hợp hài hòa mang đến vẻ mới mẻ, thông thoáng và hiện đại cho công trình. Gửi đi.
Kiến trúc tầng 2 cũng thực sự thu hút người nhìn với mảng tường gạch hoa thông gió nhỏ màu trắng kết hợp khéo léo gạch ốp tường giả gỗ vào trang trí ngoại thất. Kiểu trang trí này vừa mang đến hiệu ứng không gian mạnh mẽ nhưng cũng vô cùng độc đáo, cuốn hút và tinh tế trong thiết kế.
Phối cảnh mẫu nhà ống độc đáo, sự kết hợp hài hòa giữa nhiều chất liệu
Gợi ý phương án thiết kế công năng cho nhà ống 2 tầng 6x14m
Để đưa ra một phương án bố trí công năng phụ thuộc rất nhiều vào hình dạng và cấu trúc của công trình. Mỗi ngôi nhà hình vuông, hình chữ nhật hay hình chữ L sẽ có những cách bố trí công năng khác nhau. Đối với mẫu nhà ống 6x14m 2 tầng, bề ngang lớn là một lợi thế nhưng cũng sẽ là một trở ngại nếu gia chủ cố gắng phân chia không gian quá nhiều, dễ khiến bên trong trở nên chật chội và mắc phải những lỗi phong thủy cơ bản. Vì vậy, dù là hình thức nhà ống nào thì gia chủ cũng nên điều chỉnh số phòng, diện tích phòng phù hợp với nhu cầu sử dụng và giới hạn xây dựng cho phép.
Ngôi nhà ống với kích thước 6x14m cũng khá vừa vặn phù hợp với những gia đình có số lượng thành viên vừa và nhỏ. Tùy theo nhu cầu sử dụng của từng hộ gia đình mà số lượng thành viên trong nhà khác nhau nên cách bố trí công năng theo số lượng phòng ngủ cũng phải khác nhau. Với kiểu nhà này, bạn nên bố trí nhiều nhất từ 1 đến 3 phòng ngủ. Nếu bạn vẫn đang gặp khó khăn trong việc sắp xếp bố trí công năng sao cho hợp lý với diện tích và nhu cầu sử dụng của ngôi nhà thì dưới đây là một số cách bố trí công năng để bạn tham khảo:
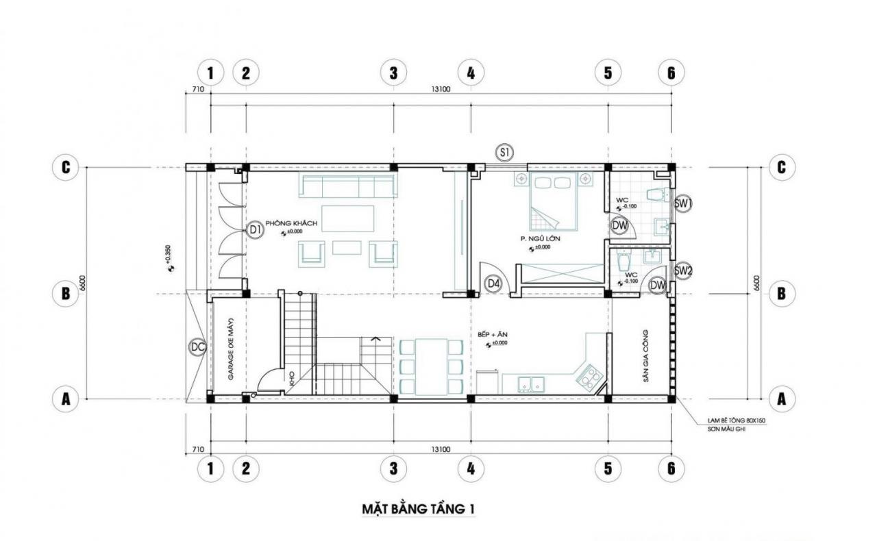
lựa chọn 1
Không gian tầng 1 trong cách bố trí này bao gồm: phòng khách rộng rãi, đối diện cầu thang ,. Phòng bếp và bàn ăn được bố trí cạnh cầu thang, phía sau là sân sơ chế, nơi người nội trợ chuẩn bị đồ ăn. Ở tầng một có một phòng ngủ lớn với phòng tắm riêng. Ngoài ra còn có nhà vệ sinh riêng liền kề dành cho khách.
Sơ đồ mặt bằng 1
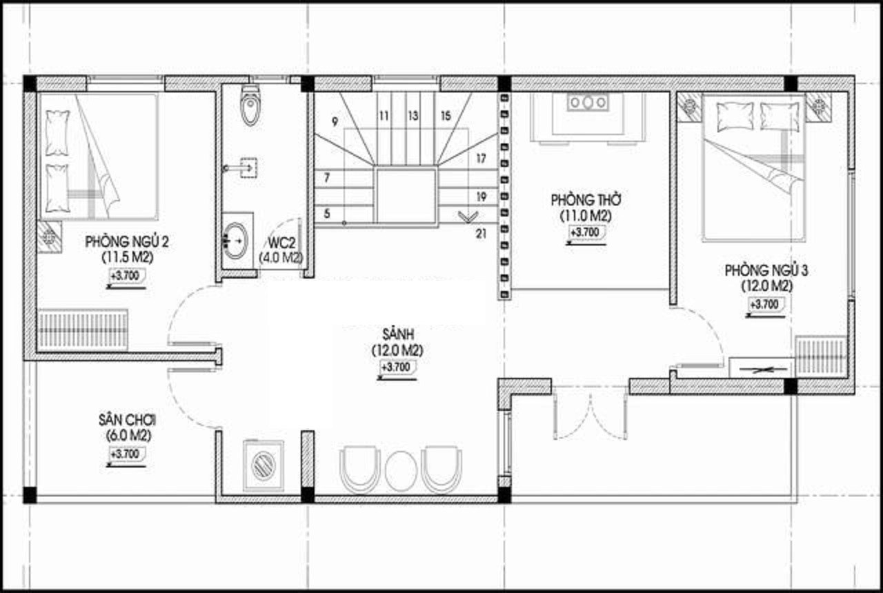
Tầng 2 sẽ bao gồm 2 phòng ngủ, 1 phòng thờ, 1 không gian sinh hoạt + làm việc, vệ sinh chung, ban công phía trước, sân phơi phía sau. Thiết kế này sẽ chú trọng đến các không gian sinh hoạt chung và riêng được bố trí khoa học nhằm mang đến cuộc sống thoải mái, thư thái cho các thành viên.
Mặt bằng tầng 2
Kế hoạch 2
Mẫu nhà ống 6x14m 2 tầng có hình chữ L nhưng được thiết kế khéo léo tạo nên những không gian vô cùng vuông vắn. Lối vào cửa chính vì đất ngắn chiều sâu nên không thể đi vào từ mặt tiền đường mà được bố trí ở góc chữ L. Kiến trúc sư thiết kế 2 cửa, cửa lớn sẽ đi thẳng vào. vào phòng khách thoáng mát. Có cửa sổ hướng ra sân trước. Một lối đi nhỏ còn lại đi vào bếp, cách bố trí này khá tiện lợi vì sẽ không ảnh hưởng khi nhà có khách. Giữa nhà được bố trí cầu thang. Một phòng ngủ vừa phải được bố trí riêng trong góc nhà vô cùng riêng tư, yên tĩnh và cũng rất thoáng mát. Phòng vệ sinh chung được đặt kín đáo cuối nhà thuận tiện cho việc sinh hoạt chung của các thành viên trên tầng này.
Sơ đồ mặt bằng 1
Tầng 2 bố trí 2 phòng ngủ, 1 phòng thờ, 1 sảnh chung, 1 vệ sinh chung và 1 sân phơi. Các phòng ngủ đơn giản đều được bố trí cổng và cửa sổ thông thoáng giúp không gian nghỉ ngơi được thông thoáng nhất có thể. Với mặt bằng thông tầng, kết cấu ngôi nhà 2 tầng ở góc nhìn nào cũng rất rộng rãi, thoáng mát và sáng sủa, tràn đầy năng lượng.
Mặt bằng tầng 2
Lựa chọn 3
Phương án thứ 3 có cách bố trí công năng như sau, bao gồm: sân trước, phòng khách, bếp kết hợp phòng ăn, phòng ngủ. Nhà vệ sinh chung và 1 sân ướt.
Tầng 1 của mẫu nhà ống 6x14m 2 tầng là không gian sinh hoạt chung lý tưởng cho gia đình với phòng khách có không gian khá rộng rãi, nội thất đẹp và tiện nghi được bố trí gọn gàng tạo cảm giác ấm cúng, gần gũi. gần. Phòng khách và phòng bếp, phòng ăn được bố trí liền kề tạo thành một không gian sinh hoạt chung rộng rãi, thoáng mát, tạo sự gắn kết cho các thành viên. Các không gian này được ngăn cách bằng vách ngăn nhằm tiết kiệm chi phí, diện tích, đảm bảo không gian riêng tư nhưng vẫn hài hòa trong tổng thể.
Tiếp đến là cầu thang và không gian thu nhỏ gầm cầu thang vừa ngăn cách không gian bếp và phòng khách vừa mang lại sức sống, sự tươi mới cho không gian tầng một. Phòng ngủ nằm ở cuối nhà có thiết kế. Cách bài trí thoải mái, kín đáo. Cuối cùng là bố trí một phòng vệ sinh chung, thuận tiện cho việc sử dụng của gia chủ và khách.
Sơ đồ mặt bằng 1
Tầng 2 có không gian đệm gần cầu thang được sử dụng làm khu sinh hoạt chung phục vụ nhu cầu sinh hoạt chung của mọi thành viên như vui chơi, đọc sách, trò chuyện. Các phòng ngủ đủ rộng để sinh hoạt và nghỉ ngơi. Phòng ngủ master rộng rãi có khu vực làm việc, ban công hướng ra bên ngoài để đón ánh sáng vào bên trong. Phòng ngủ nhỏ cũng được thiết kế tiện nghi không kém. Phòng thờ trang nghiêm với không gian yên tĩnh, thanh tịnh do không tiếp giáp với nhiều phòng chức năng khác.
Mặt bằng tầng 2
Trên đây là một số gợi ý về cách bố trí công năng sử dụng cũng như các mẫu nhà ống 2 tầng 6x14m đẹp nhất. Nếu quan tâm, bạn có thể gửi yêu cầu về cho chúng tôi hoặc gọi đến Hotline: 024. 38 16 8888, để được các KTS giàu kinh nghiệm thiết kế tư vấn và lên phương án bố trí mặt bằng hợp lý nhất với nhu cầu sử dụng của gia đình bạn!
Nguồn: https://kientrucsaigon.net
- Top công ty xây dựng nhà uy tín TPHCM
- Đơn giá xây nhà trọn gói & thô Tân Tạo Bình Tân
- Mẫu thiết kế thi công biệt thự 2 tầng kiểu pháp đẹp nhất hiện nay
- Xây nhà trọn gói mỹ khánh củ chi
- Trang trí phòng khách bằng gỗ tự nhiên nâng tầm không gian sống
- Những quy tắc vàng khi thiết kế tủ bếp khiến ai cũng mê
- “Bật mí” những mẫu thiết kế nhà cấp 4 có sân thượng ấn tượng















