Thiết kế nội thất
Thiết kế nội thất
Thiết kế xây dựng cầu đường bộ
Thiết kế xây dựng cầu đường bộ Thi công xây dựng cầu đường Xây dựng...
Mẫu tủ bếp dưới gầm cầu thang phòng khách đẹp
06 Th3 Một gian bếp xinh xắn đầy đủ công năng được đặt ở không...
Công ty thầu xây nhà hóc môn HCM uy tín
Đơn giá xây dựng nhà Hóc Môn Công ty Phú Nguyễn xây nhà Hóc Môn...
Đơn giá xây dựng nhà Cần Giờ HCM
17 Th3 GIÁ XÂY NHÀ CẦN GIỜ HIỆN NAY 4.6 TR M2 THÔ 3.3 TR...
Đơn giá xây nhà m2 best hiện nay trên thị trường
Báo Giá Xây Dựng Nhà Trọn Gói m2 Chi Tiết Mới Nhất 2025 Công ty...
Giá vật liệu cát đá sắt xây dựng hcm 2026
VLXD & TTNT Phú Nguyễn được thành lập dựa trên mong muốn cung cấp cho khách...
Đơn giá xây thô & trọn gói Thới an Quận 12
Giá xây nhà q12 Công ty Thiết kế xây nhà đẹp chất lượng Quận 12...
Báo giá xây nhà 1 trệt lửng 3 lầu tum sân thượng 5×20
Quý khách đang cần tìm mẫu nhà phố 5 tầng hoặc mẫu nhà phố 4...
Mẫu nhà 1 trệt lửng 3 lầu tum sân thượng
Quý khách đang cần tìm mẫu nhà phố 5 tầng hoặc mẫu nhà phố 4...
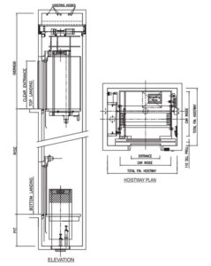
Bản vẽ hố thang máy gia đình hay dùng
Tổng hợp 7 bản vẽ thang máy gia đình tiêu chuẩn Bản vẽ thang máy...
Đơn giá xây nhà Tân Chánh Hiệp Quận 12
Giá xây nhà trọn gói năm 2025 HCM XÂY NHÀ PHỐ 2025 TRỌN GÓI 4.600.000...
Bảng giá xây nhà m2 hiện nay 01-2026
Bảng báo giá xây nhà trọn gói mới nhất TPHCM 01-2026 và các tỉnh lân...
Thi công nội thất đẹp
thi công nội thất Căn hộ chung cư 2 phòng ngủ đẹp hiện nay đang...
Dịch vu xin giấy phép xây dựng
xin giấy phép Gò Vấp miễn phí XIN GIẤY PHÉP XÂY DỰNG QUẬN GÒ VẤP...
Công ty xây nhà uy tín tp hcm 2025
Công ty thầu Xây nhà trọn gói giá rẻ 4.6 triệu m2 tại tp hcm...
